Вхід на сайт

Ел. пошта:
Пароль:

Реєстрація на сайті

Призвіще: Область:
Ім'я: Населений пункт:
    По батькові: Номер телефону:
    Ел. пошта: Компанія:
      Пароль: Посада:
      Повторіть пароль: Рік початку роботи:
      Фото:
      З правилами розміщення об'єктів погоджуюсь

      Забули пароль?

      Вкажіть ел. пошту — ми надішлемо Вам новий пароль для входу
      Ел. пошта:

      Проблема на сайті

      Закрити
      Ваш e-mail:
      (необов'язково)
      Розкажіть нам, що сталось

      без комісії Павленка, 58 — Продається квартира

      (г. Ирпень)

      70000 $

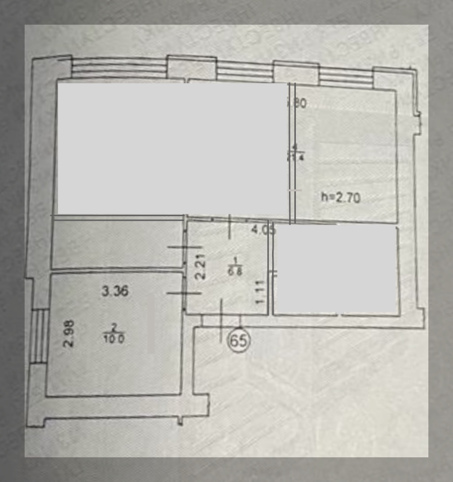
      Загальна площа: 59 кв.м

      Жила площа: 31 кв.м

      Площа кухні: 15 кв.м

      Кімнат: 2

      Поверх: 3

      К-ть поверхів: 10

      Нові Метри Center – ЖК комфорт класу в самому серці міста!

      В квартирі завершені всі чорнові роботи:
      *Є тепла підлога, радіатори, двоконтурний котел
      * Фільтр на воду
      * Розведена електрика, вода та каналізація по точках
      * Встановлена інсталяція
      * Вмонтовані підвіконня
      * Ідеально підготовлені стіни під фарбування
      * Розподільний електричний щит
      * Усі лічильники
      * Подвійні металеві вхідні двері

      Територія комплексу закрита та має власну інфраструктуру:
      зона відпочинку, сучасний спортивний, дитячий майданчик та паркувальну зону.
      Ідеальне розташування:
      поруч школа, парк, садок, центр міста.

      Надіслати скаргу

      Закрити
      Поскаржитися на об'єкт «Павленка, 58 (г. Ирпень)»
      Ваш коментар:(Необов'язково)
      Ваша скарга буде надіслана ріелтору, що розмістив об'єкт, а також адміністрації сайту АФНУ.
      Ваше ім'я:
      (Обов'язково)
      Ваш e-mail для відповіді:
      (Обов'язково)

      Вам также могут подойти

      Пушкінська, 64/68 (г. Ирпень) - Продається квартира, 60000 $ - АФНУ

      Оновлено: 10 листопада 2025

      Розміщено: 11 березня 2024

      Продається квартира

      3 кімн., площа 92.8/38.9/15.3, поверх 10/10

      г. Ирпень, Пушкінська, 64/68

      60000 $ без комісії

      Савка-Волкошовець Анна Мирославівна

      Керівник (Сімейна агенція нерухомості Liberty (сімейна АН Ліберті))

      Дворівнева квартира з власною терасою!

      Загальна площа 92.8м2.
      Тераса площею 35м2.
      Поверх - 10.

      Функціональне та продумане планування. 2 великі кімнати, 2 санвузли, простора кухня-вітальня з панорамними вікнами, зона відпочинку…

      Детальніше

      Коментарі