Вхід на сайт

Ел. пошта:
Пароль:

Реєстрація на сайті

Призвіще: Область:
Ім'я: Населений пункт:
    По батькові: Номер телефону:
    Ел. пошта: Компанія:
      Пароль: Посада:
      Повторіть пароль: Рік початку роботи:
      Фото:
      З правилами розміщення об'єктів погоджуюсь

      Забули пароль?

      Вкажіть ел. пошту — ми надішлемо Вам новий пароль для входу
      Ел. пошта:

      Проблема на сайті

      Закрити
      Ваш e-mail:
      (необов'язково)
      Розкажіть нам, що сталось

      без комісії Поштова, 117 — Продається квартира

      (г. Запорожье, Жовтневый район)

      36500 $

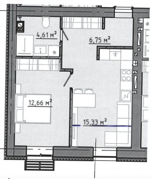
      Загальна площа: 39 кв.м

      Жила площа: 12 кв.м

      Площа кухні: 15 кв.м

      Кімнат: 1

      Поверх: 3

      К-ть поверхів: 10

      Пропонуємо купити квартиру в новобудові ЖК ОСНОВА!
      Олександрівський (Жовтневий) район, вул. Поштова, 117.
      -Здача будинку вже навесні!!!
      -Перша черга
      -Закрита територія
      -В самому центрі міста
      -Індивідуальне, ексклюзивне планування
      -Квартира розташована на 3 поверсі
      -Площа квартири 39,35 кв.м.
      -Квартира продається без комісії для покупця
      Є можливість придбати квартиру за програмою Є Оселя.

      Надіслати скаргу

      Закрити
      Поскаржитися на об'єкт «Поштова, 117 (г. Запорожье, Жовтневый район)»
      Ваш коментар:(Необов'язково)
      Ваша скарга буде надіслана ріелтору, що розмістив об'єкт, а також адміністрації сайту АФНУ.
      Ваше ім'я:
      (Обов'язково)
      Ваш e-mail для відповіді:
      (Обов'язково)

      Вам также могут подойти

      Независимой Украины, 51 (г. Запорожье, Орджоникидзевский район) - Продається квартира, 35000 $ - АФНУ

      Оновлено: 7 січня

      Розміщено: 12 січня 2024

      Продається квартира

      площа 78/49/7, поверх 3/5

      г. Запорожье, Независимой Украины, 51

      35000 $ без комісії

      Бейда Дмитро

      Пропонуємо придбати простору повнометражну квартиру.
      Квартира має 3 роздільні кімнати, роздільний санвузол.
      Вікна кімнат і кухні виходять на різні сторони буденку.
      Залишаються всі меблі та техніка.
      Прекрасне розташування у самому…

      Детальніше

      Коментарі