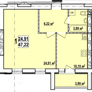
Продаю однокомнатную, с возможностью перепланировки в двухкомнатную квартиру общей площадью 47.22 м2, в новострое самого надёжного Харьковского застройщика АО Трест Жилстрой-1, ЖК Мира-3, (строительный дом 7 секция В). Квартира находится на первом этаже, девятиэтажного дома с наружным утеплением стен. Окна выходят во двор. Односторонняя. Не угловая, не торцевая. Комплектация квартиры: межкомнатные перегородки, металлическая дверь, метало-пластиковые окна, горизонтальная разводка отопления с установкой радиаторов (есть возможность установки индивидуального счётчика на тепло), электрический счётчик, гидроизоляция (стяжка) пола. В доме предусмотрены электрические кухонные плиты. Плановая сдача дома, в декабре 2021 года, к ремонту можно приступать с апреля 2022 года. Жилой комплекс расположен вблизи самой оживленной и динамичной магистрали города - Московского проспекта. Хорошая транспортная развязка (автобусы, маршрутные такси, троллейбусы), в пешей доступности находится станция метро Индустриальная (Пролетарская). Несколько супермаркетов, магазины строительных материалов, отделения банков, несколько школ, детские сады и многое другое - все это сделает Вашу жизнь поистине комфортной. Возле дома находится не одна спортивная площадка, стадион, различные спортивные клубы. Оформление проходит в офисе Треста Жилстрой-1. Звонки и заявки на просмотры квартир принимаются ежедневно с 9.00 до 19.00.