Оренда магазину по пр. Миру, 28 м.Кривий Ріг Металургійний район зупинка "1 міська лікарня" розташоване по "червоній лінії"
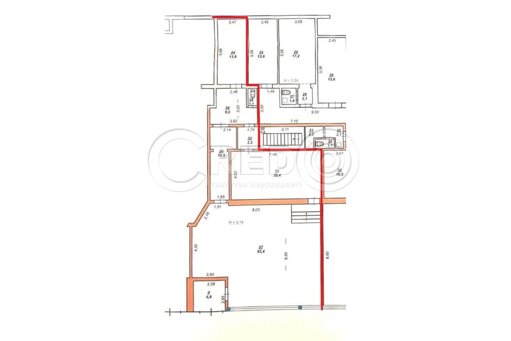
Про об’єкт: - приміщення вбудоване-прибудоване - загальна площа - 160кв.м - торгівельна площа - 83,4кв.м та 30,4 кв.м - висота потолків - 3,14м - центральний вхід - перший поверх 9-ти поверхового будинку - окремий вхід
Логістична розв’язка: - розташоване по "червоній лінії", центральна частина міста - поруч зупинки громадського транспорту - магазини, лікарня, учбові заклади та інше - великий житловий масив - автомобільний та пішохідний трафік
Додаткові платежі: - опалення в сезон - оплата по лічильникам - світло, вода - інтернет, охорона - послуги ЖКХ - 50% - послуга агенції Оренда - 300грн/кв.м
За будь-якими питаннями за цією або схожими пропозиціями звертайтесь за номером телефону 067 696 16 51. З повагою, команда Credo!
Пропонується в оренду комерційне приміщення у Металургійному районі по вул. Криворіжсталі. Об’єкт розташований біля зупинки «Червона», що забезпечує стабільний пішохідний трафік. Ідеально підійде для магазину, аптеки, сфери послуг або іншої…