Вхід на сайт

Ел. пошта:
Пароль:

Реєстрація на сайті

Призвіще: Область:
Ім'я: Населений пункт:
    По батькові: Номер телефону:
    Ел. пошта: Компанія:
      Пароль: Посада:
      Повторіть пароль: Рік початку роботи:
      Фото:
      З правилами розміщення об'єктів погоджуюсь

      Забули пароль?

      Вкажіть ел. пошту — ми надішлемо Вам новий пароль для входу
      Ел. пошта:

      Проблема на сайті

      Закрити
      Ваш e-mail:
      (необов'язково)
      Розкажіть нам, що сталось

      без комісії ул. Радистов, 40-в — Продається квартира

      (г. Киев, Деснянский район)

      49800 $

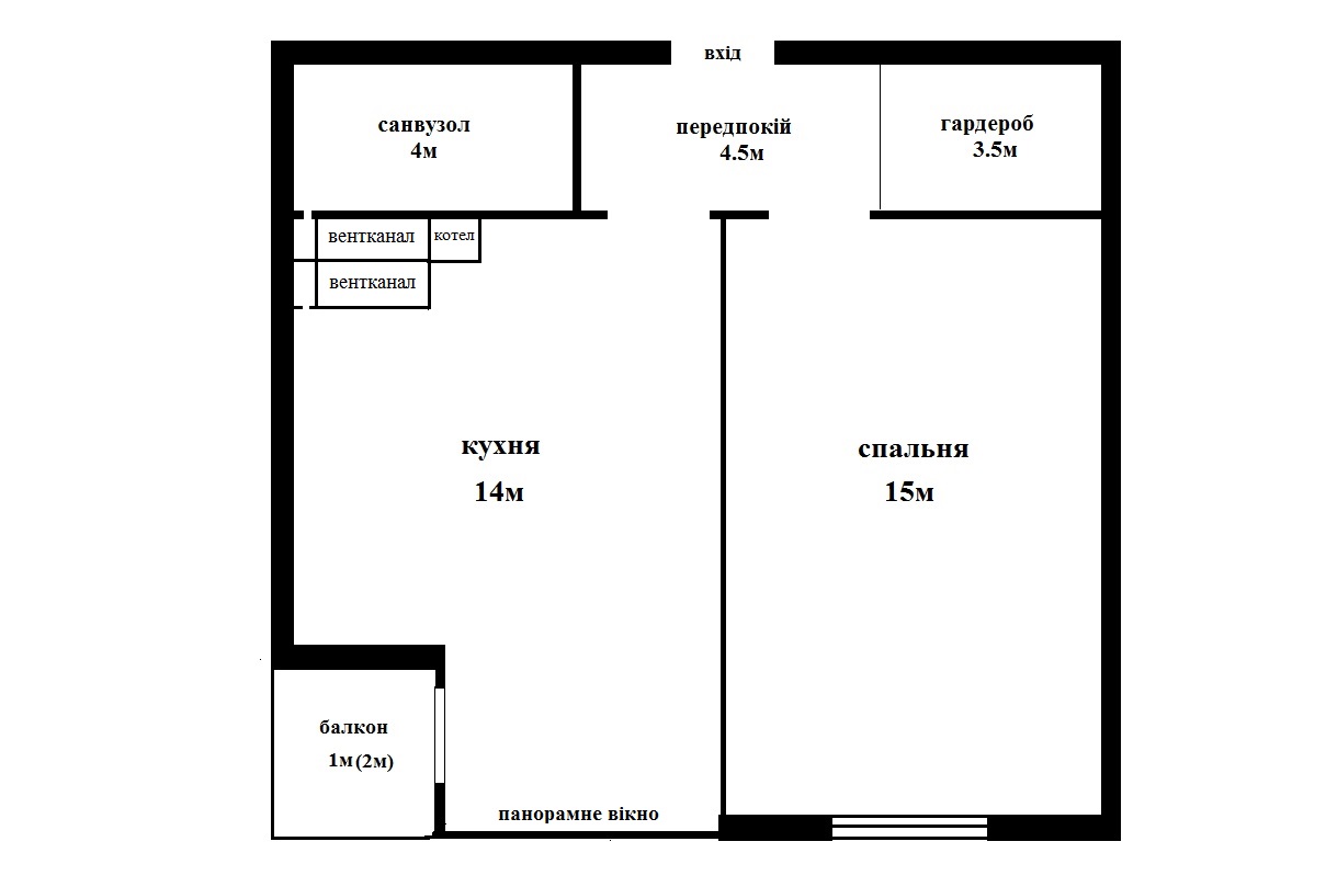
      Загальна площа: 42 кв.м

      Жила площа: 15 кв.м

      Площа кухні: 14 кв.м

      Кімнат: 1

      Поверх: 3

      К-ть поверхів: 6

      * ЖК який НЕ МАЄ аналогів
      * з правом власності
      * газ
      * індивідуальне опалення
      * швейцарські ліфти
      * монолітний каркас
      * без комісії для покупця

      * площа цієї чудової квартири 42м
      * має окрему спальню 15м та кухню 14м з виходом на відкритий балкон
      * розташована в самому серці будинку - на 3му поверсі
      * будинок газифікований - можливість готувати їжу незалежно від наяності світла
      * в квартирі двоконтурний котел Bosch для індивідуального опалення та гарячої води

      * в ЖК лише 4 будинки по 6 поверхів , кожен з монолітним каркасом (!) + керамоблок + утеплення
      * комплекс ОТОЧЕНИЙ лісом, отже тут завжди тихо та дійсно свіже повітря з усіх сторін
      * закрита територія, своя парковка та дитяча площадка
      * поруч продуктові, аптека, кав'ярні , салони красоти
      * до метро 10 хв. громадським транспортом, на ато 5 хв.

      * затишний та сучасний ЖК "Лісова казка 2", вул. Радистів 40-в

      ціна найкраща на ринку
      без комісії для покупця
      запрошую на перегляд

      забороняю дублювати рекламу!

      Надіслати скаргу

      Закрити
      Поскаржитися на об'єкт «ул. Радистов, 40-в (г. Киев, Деснянский район)»
      Ваш коментар:(Необов'язково)
      Ваша скарга буде надіслана ріелтору, що розмістив об'єкт, а також адміністрації сайту АФНУ.
      Ваше ім'я:
      (Обов'язково)
      Ваш e-mail для відповіді:
      (Обов'язково)

      Коментарі